Löydä joustavat ja ensiluokkaiset toimitilamme eri tarpeisiin:
toimistot, liiketilat, palvelutilat sekä varastot ja tuotantotilat.
Hae vapaana olevia tiloja 35 paikkakunnan joukosta.
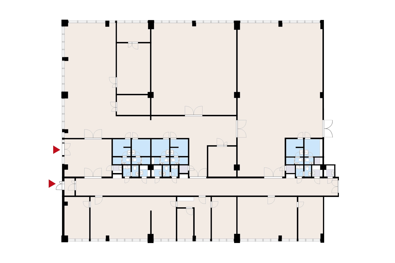
Roihupellon alueella on mahdollisuudet suureen. Vuokrattavana koko kolmannen kerroksen kattava toimisto-/varasto-/kevyttuotantotila, joka voidaan jakaa pienempiin osiin. Tavaroiden kuljetusta helpottaa kerrokseen tuleva takapihan tavarahissi, jonka edustalla on nostolaituri.
Kohteella on hyvä sijainti Itäväylän varrella. Bussit kulkevat kadun kulmalta, ja Siilitien metroasemalle on vain noin 1 km. Kiinteistössä on kiinalainen ravintola, jossa on arkisin tarjolla lounas. Lähellä Viikki ja Itäkeskus kaikkine palveluineen. Yhteiskäyttöistä aulatilaa 18,5 m², joka jyviteään suhteessa jaetun tilan neliöihin.
Kauppatapa
vuokrataan
Käyntiosoite
Laippatie 1, 00880 Helsinki
Tilatyyppi
Tuotanto-/työtila
Pinta-ala
1164 m²
Kerros
3. kerros
Vapautuminen
Heti vapaa
Pihalla pysäköintipaikkoja henkilökunnalle.
Metroasema
1,1 kmRaitiovaunu
310 mLinja-auto
150 mJuna-asema
11,4 kmLentokenttä
21 km
"*" näyttää pakolliset kentät