Etusivu » Jyväskylä » Toimisto 377 m²

Toimisto 377 m² | 3. kerros

Kiinteistö: Puistonkulma

Liiketila 554.5 m² Liiketila 361.5 m² Toimisto 181.5 m² Liiketila 206 m² Toimisto 376.5 m² Toimisto 212.5 m²

Kohdekuvaus

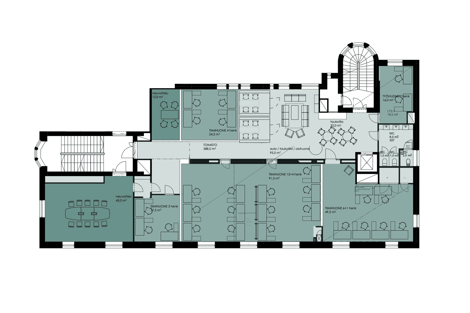
Vuokrattavana näyttävä, valoisa toimistotila, josta upeat näkymät Kirkkopuistoon ja sisäpihalle. Esimerkkisovituksessa 25 työpistettä, 2 neuvotteluhuonetta, vetäytymistiloja, ryhmätyötilaa, loungealue, sekä keittiö- ja sosiaalitilat. Kaksi sisäänkäyntiä, hissi suoraan tilaan. Rakennus sijaitsee kävelykadun varrella, linja-autopysäkit 200 m päässä.

Toimitilan tiedot

Kauppatapa

vuokrataan

Käyntiosoite

Kauppakatu 18 A, 40100 Jyväskylä

Tilatyyppi

Toimisto

Pinta-ala

376.5 m²

Kerros

3. kerros

Vapautuminen

Heti vapaa

Lähialueen palvelut

  • Hotelli
  • Kahvila
  • Kampaamo/parturi
  • Kuntosali
  • Lääkäriasema
  • Pesula
  • Posti
  • Ravintola
  • Ruokakauppa

Pysäköintipalvelut

  • Pysäköintialue

Pysäköinti

Sisäpihalle kaavaillaan sähköauton latauspistettä. Pyöräparkki talon sisäpihalla.

Raitiovaunu

145 km

Linja-auto

760 m

Juna-asema

870 m

Lentokenttä

22 km

Tämän toimitilan vuokraa

Jukka Akselin

Jukka Akselin

Infonia

040 504 1401

jukka.akselin@infonia.fi

Ota yhteyttä

"*" näyttää pakolliset kentät

Kenttä on validointitarkoituksiin ja tulee jättää koskemattomaksi.