Etusivu » Jyväskylä » Toimisto 193 m²

Toimisto 193 m² | 3. kerros

Kiinteistö: Innova 2

Toimisto 147 m² Toimisto 166 m² Toimisto 131 m² Toimisto 58 m² Toimisto 569 m² Toimisto 193 m²

Kohdekuvaus

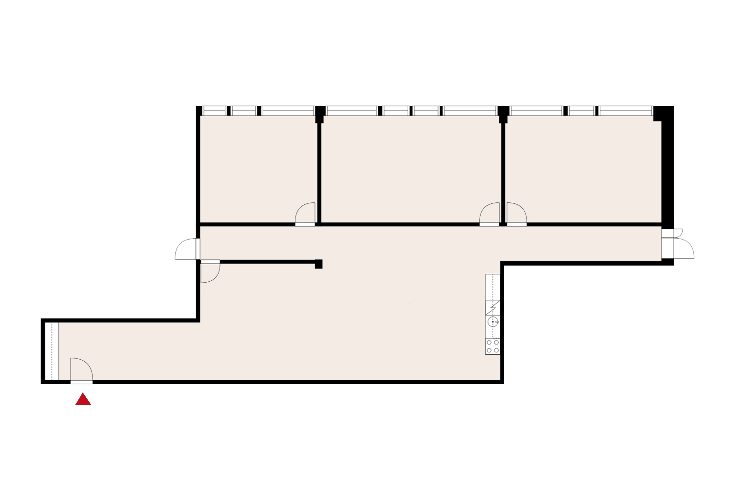
Vuokrataan 3. kerroksen toimistotila Innova 2 -talosta. Tilasta näkymät keskustaan päin. Yhteiskäyttöiset sosiaalitilat muiden vuokralaisten kanssa. Kiinteistö tarjoaa laajan valikoiman palveluita. Ensimmäisessä kerroksessa on aulapalvelu sekä vuokrattavia neuvottelutiloja. Kohde sijaitsee hyvien kulkuyhteyksien varrella Jyväskylän Lutakossa, lähellä kaupungin palveluita ja juna-asemaa. Tervetuloa tutustumaan!

Toimitilan tiedot

Kauppatapa

vuokrataan

Käyntiosoite

Lutakonaukio 7, 40100 Jyväskylä

Tilatyyppi

Toimisto

Pinta-ala

193 m²

Kerros

3. kerros

Vapautuminen

Vapautumassa oleva

Kiinteistön palvelut (kaupallinen)

  • Aulapalvelu
  • Catering
  • Vuokrattavia neuvottelutiloja

Lähialueen palvelut

  • Autopesula
  • Hotelli
  • Kahvila
  • Kampaamo/parturi
  • Kioski
  • Kuntosali
  • Lääkäriasema
  • Pesula
  • Ravintola
  • Ruokakauppa

Pysäköintipalvelut

  • Pysäköintilaitos

Pysäköinti

Pysäköinti hoituu vaivattomasti Jyväs-Parkin Paviljonki 1 ja 2 -pysäköintitaloissa, jotka palvelevat ensisijaisina paikoitusratkaisuina. Vieraspysäköinti onnistuu kätevästi suoraan talon pihalla. Sähköautoilijoille on tarjolla latauspaikkoja, ja pyöräilijöitä palvelevat runkolukittavat pyörätelineet sekä kulunvalvottu pyöräparkki viereisessä rakennuksessa.

Raitiovaunu

148 km

Linja-auto

500 m

Juna-asema

350 m

Lentokenttä

23 km

Tämän toimitilan vuokraa

Katja Kröger

Katja Kröger

Avainasiakaspäällikkö

Kielo

050 512 7707

katja.kroger@kielotoimitilat.fi

Minna Hämäläinen

Minna Hämäläinen

Avainasiakaspäällikkö

Kielo

040 564 8042

minna.hamalainen@kielotoimitilat.fi

Ota yhteyttä

"*" näyttää pakolliset kentät

Kenttä on validointitarkoituksiin ja tulee jättää koskemattomaksi.